Fielders - Finesse - Shadowline

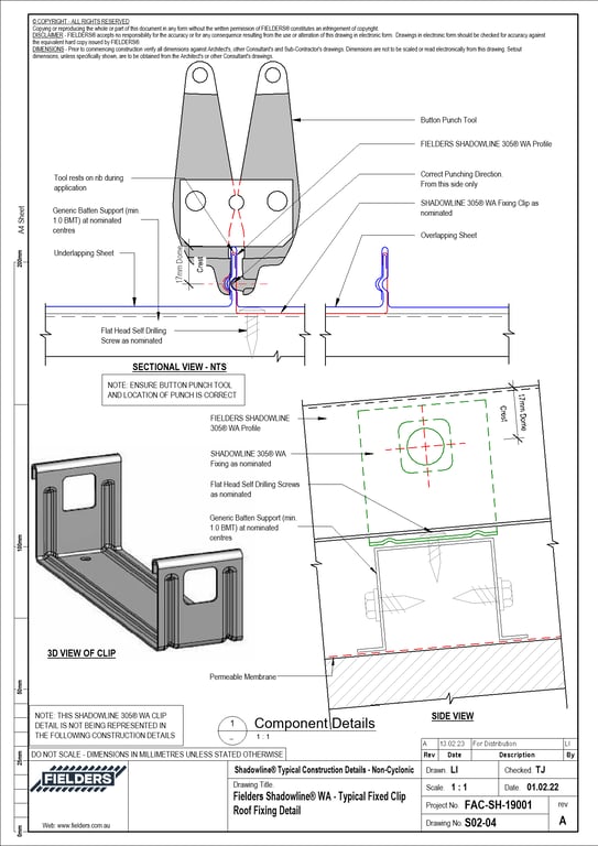
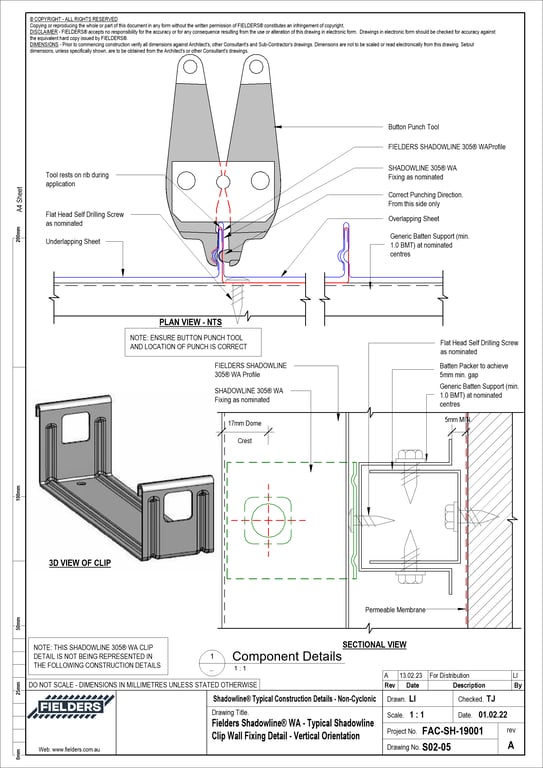
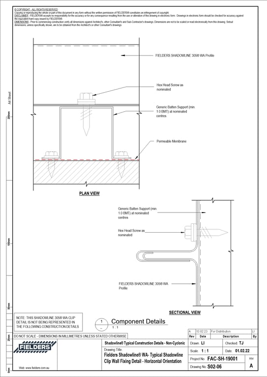
With its ability to deliver a striking and classically smooth finish, Fielders Shadowline™ 305 is the perfect way to make a dramatic statement on any structure. Featuring deep pans and prominent outlines, Shadowline™ 305 can be installed vertically or horizontally as a wall cladding or down to a one degree pitch in roofing applications. Offering the convenience of button punched or screw fixed installation options and the ability to be rolled to any transportable length in an impressive range of COLORBOND® steel colours, Shadowline™ 305 can be customised to create a bold addition to an any industrial, commercial or domestic application.
Collection Download. A collection is a zip file containing a range of objects or images. The ‘Complete Library’ collection contains the entire library.
Products in this collection
Category
Tags
12 of 112 products



















