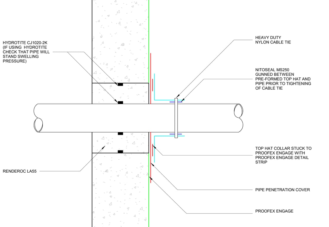
TSD-W-PVCJ01 - PVC COMPARTMENT SYSTEM - CONSTRUCTION JOINT DETAIL

 Image of TSD-W-PVCJ01 - PVC COMPARTMENT SYSTEM - CONSTRUCTION JOINT DETAIL

Detail Download. 2D Details / Drafting Views accompany the 3D content and allow for detailed technical construction documentation.