• Home
  • Content
  • For Manufacturers
  • For Designers
  • Plug-In
  • About
  • News
  • Contact
  • Content
  • Cemintel
  • Cladding
  • Fibre Cement
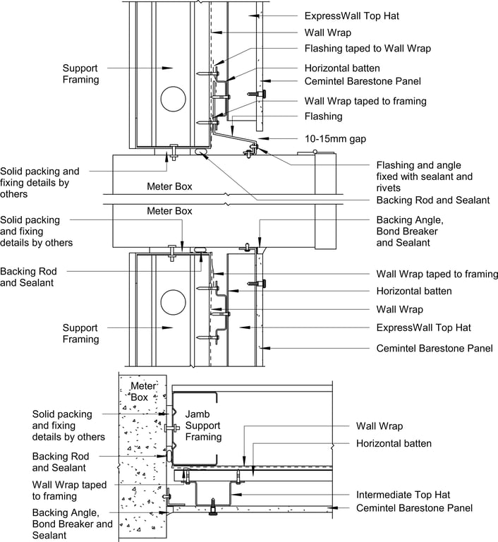
  • Territory Internal - Head Detail – With Coloured Angle

Territory Internal - Head Detail – With Coloured Angle

 Image of Territory Internal - Head Detail – With Coloured Angle

Detail Download. 2D Details / Drafting Views accompany the 3D content and allow for detailed technical construction documentation.

Cemintel Logo

Connect with the Manufacturer

RESEARCH PRODUCT

Related content

Navigate to AUS-TERH-001-02 - TYPICAL FRAMING SET-OUT WITH 70MM TIMBER FRAMING AND TERRITORY PRE-FORMED CORNERS – PLAN VIEW
AUS-TERH-001-02 - TYPICAL FRAMING SET-OUT WITH 70MM TIMBER FRAMING AND TERRITORY PRE-FORMED CORNERS – PLAN VIEW
Navigate to Surround External - Horizontal Joint – Angled Backing Strip
Surround External - Horizontal Joint – Angled Backing Strip
Navigate to Surround Internal - Vertical Panel Joint Layout
Surround Internal - Vertical Panel Joint Layout
Navigate to AUS-TERH-035 - EXTERNAL CORNER DETAIL – WITH PREFORMED CORNER
AUS-TERH-035 - EXTERNAL CORNER DETAIL – WITH PREFORMED CORNER
Navigate to AUS-TERV-031-02 - WINDOW DETAIL – COMMERCIAL WINDOW
AUS-TERV-031-02 - WINDOW DETAIL – COMMERCIAL WINDOW
Navigate to AUS-SURE-032 - HORIZONTAL JOINT – SEALANT FILLED
AUS-SURE-032 - HORIZONTAL JOINT – SEALANT FILLED
Navigate to AUS-TERV-009-01 - EXTERNAL CORNER DETAIL – WITH PREFORMED CORNER
AUS-TERV-009-01 - EXTERNAL CORNER DETAIL – WITH PREFORMED CORNER
Navigate to AUS-TERH-031-01 - WINDOW DETAIL – A&L ALUMINIUM AWNING WINDOW WITH WEATHERBOARD TRIM
AUS-TERH-031-01 - WINDOW DETAIL – A&L ALUMINIUM AWNING WINDOW WITH WEATHERBOARD TRIM
 
 

Footer

Start downloading quality free BIM content!

X
Facebook
LinkedIn
Instagram
REGISTER FREE NOW

Explore

  • Home
  • Search: Products
  • Search: Brands
  • For Manufacturers
  • For Designers
  • About Us
  • Contact Us

Categories

  • Plumbing Fixtures
  • Washroom Accessories
  • Lighting
  • Materials
  • Furniture
  • Piping

© 2026 BIMcontent.com. All rights reserved.

|

Privacy Policy

|

Terms of Use
Tags, click a tag to view all matching products
Get the BIMcontent Plug-In for Revit® to direct insert
Add to List