• Home
  • Content
  • For Manufacturers
  • For Designers
  • Plug-In
  • About
  • News
  • Contact
  • Content
  • Cemintel
  • Cladding
  • Fibre Cement
  • Surround Internal - Panel Installation 2

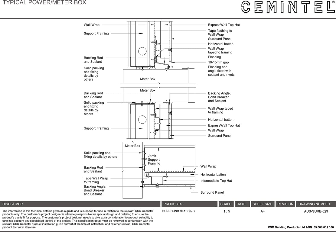
Surround Internal - Panel Installation 2

 Image of Surround Internal - Panel Installation 2

Detail Download. 2D Details / Drafting Views accompany the 3D content and allow for detailed technical construction documentation.

Cemintel Logo

Connect with the Manufacturer

RESEARCH PRODUCT

Related content

Navigate to Barestone External - Vertical Joint
Barestone External - Vertical Joint
Navigate to AUS-TERH-041-05 - INTERSTOREY JUNCTION WITH COMPOSITE CEILING
AUS-TERH-041-05 - INTERSTOREY JUNCTION WITH COMPOSITE CEILING
Navigate to Surround External - Abutment
Surround External - Abutment
Navigate to Territory Internal - Typical Framing Set-Out with 70mm Timber Framing and Territory Pre-formed Corners – Plan View 2
Territory Internal - Typical Framing Set-Out with 70mm Timber Framing and Territory Pre-formed Corners – Plan View 2
Navigate to AUS-TERV-018-04 - COMMERCIAL WINDOW
AUS-TERV-018-04 - COMMERCIAL WINDOW
Navigate to Barestone External - Horizontal Joint Sealed Side 2
Barestone External - Horizontal Joint Sealed Side 2
Navigate to AUS-TERV-016-01 - JUNCTION WITH EXTERNAL ROOFING (PITCHED ROOF SHEET-TILES)
AUS-TERV-016-01 - JUNCTION WITH EXTERNAL ROOFING (PITCHED ROOF SHEET-TILES)
Navigate to AUS-TERV-034 - BASE DETAIL
AUS-TERV-034 - BASE DETAIL
 
 

Footer

Start downloading quality free BIM content!

X
Facebook
LinkedIn
Instagram
REGISTER FREE NOW

Explore

  • Home
  • Search: Products
  • Search: Brands
  • For Manufacturers
  • For Designers
  • About Us
  • Contact Us

Categories

  • Plumbing Fixtures
  • Washroom Accessories
  • Lighting
  • Materials
  • Furniture
  • Piping

© 2026 BIMcontent.com. All rights reserved.

|

Privacy Policy

|

Terms of Use
Tags, click a tag to view all matching products
Get the BIMcontent Plug-In for Revit® to direct insert
Add to List