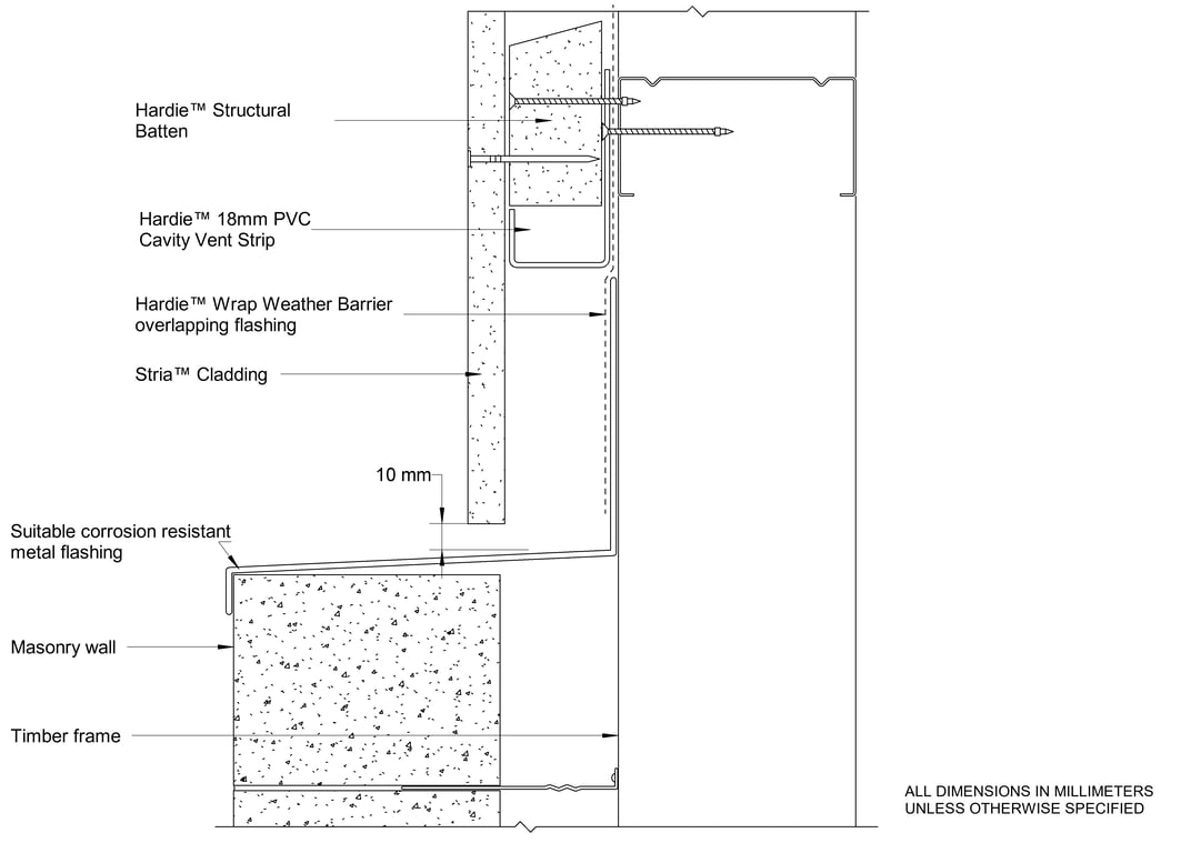
STRIA Timber CFTB On-Stud Staggered Jointing Of Battens

 Image of STRIA Timber CFTB On-Stud Staggered Jointing Of Battens

Detail Download. 2D Details / Drafting Views accompany the 3D content and allow for detailed technical construction documentation.