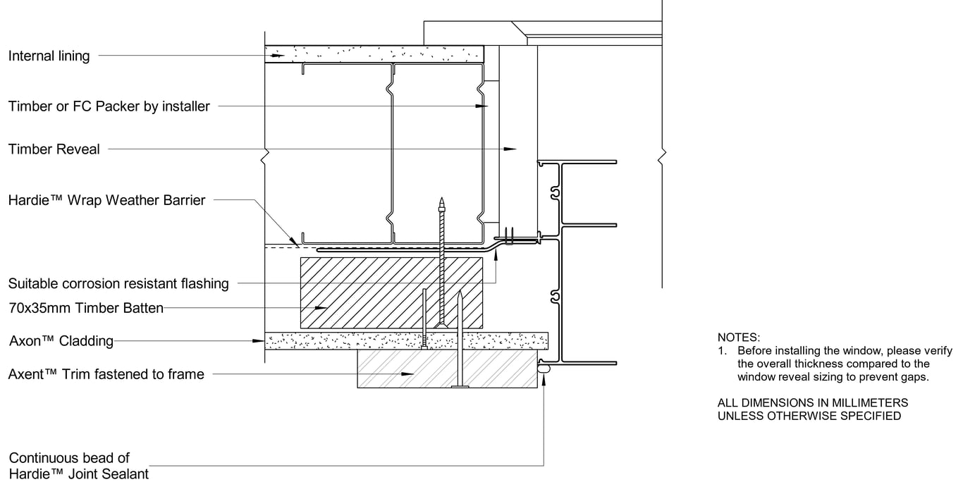
STRIA Timber CFTB Internal Corner

 Image of STRIA Timber CFTB Internal Corner

Detail Download. 2D Details / Drafting Views accompany the 3D content and allow for detailed technical construction documentation.

James Hardie Logo

Connect with the Manufacturer

RESEARCH PRODUCT