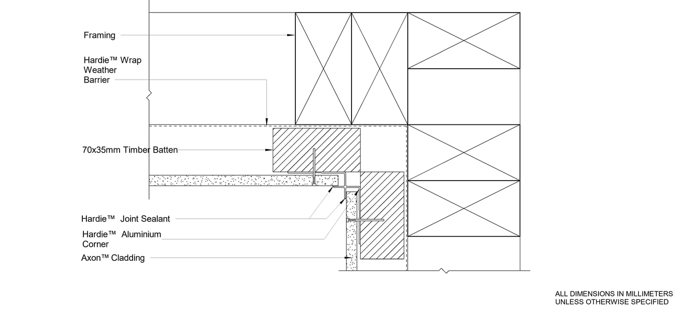
STRIA Timber CFFC On-Stud Jointing Of Battens

 Image of STRIA Timber CFFC On-Stud Jointing Of Battens

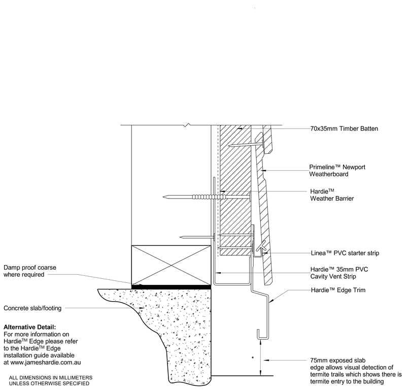
Detail Download. 2D Details / Drafting Views accompany the 3D content and allow for detailed technical construction documentation.