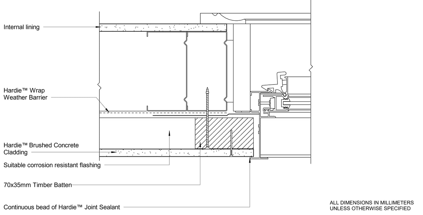
STRIA Steel CFFC Slab-Eave Junction Detail With Castellated Batten

 Image of STRIA Steel CFFC Slab-Eave Junction Detail With Castellated Batten

Detail Download. 2D Details / Drafting Views accompany the 3D content and allow for detailed technical construction documentation.

James Hardie Logo

Connect with the Manufacturer

RESEARCH PRODUCT