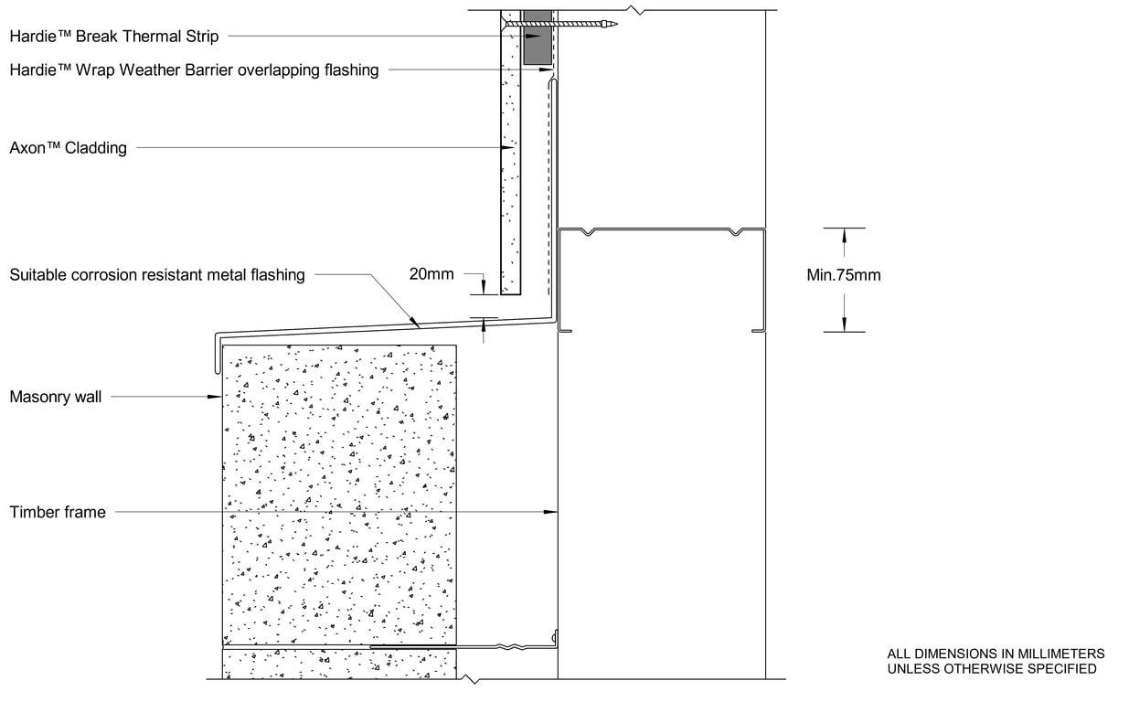
STRIA FT Timber DF Window Head And Sill - Trim

 Image of STRIA FT Timber DF Window Head And Sill - Trim

Detail Download. 2D Details / Drafting Views accompany the 3D content and allow for detailed technical construction documentation.

James Hardie Logo

Connect with the Manufacturer

RESEARCH PRODUCT