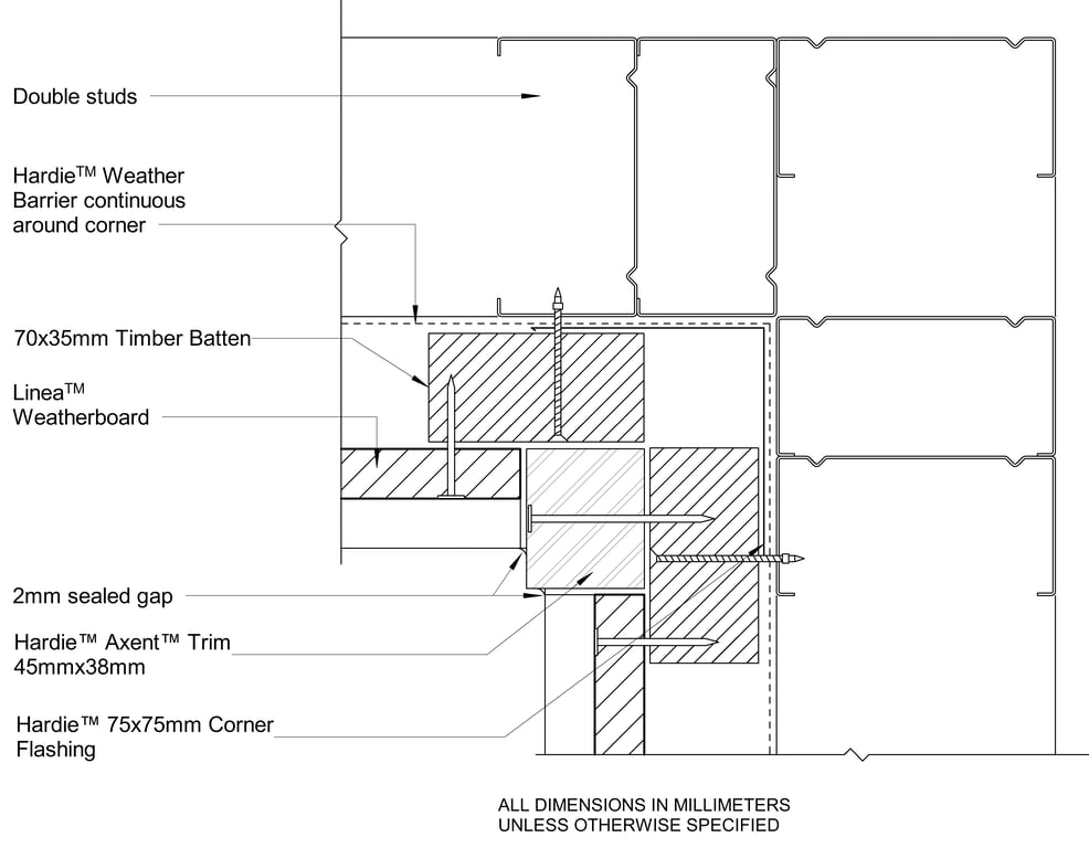
STRIA FT Timber CFTB On-Stud Jointing Of Batten On 45mm Timber Frames

 Image of STRIA FT Timber CFTB On-Stud Jointing Of Batten On 45mm Timber Frames

Detail Download. 2D Details / Drafting Views accompany the 3D content and allow for detailed technical construction documentation.