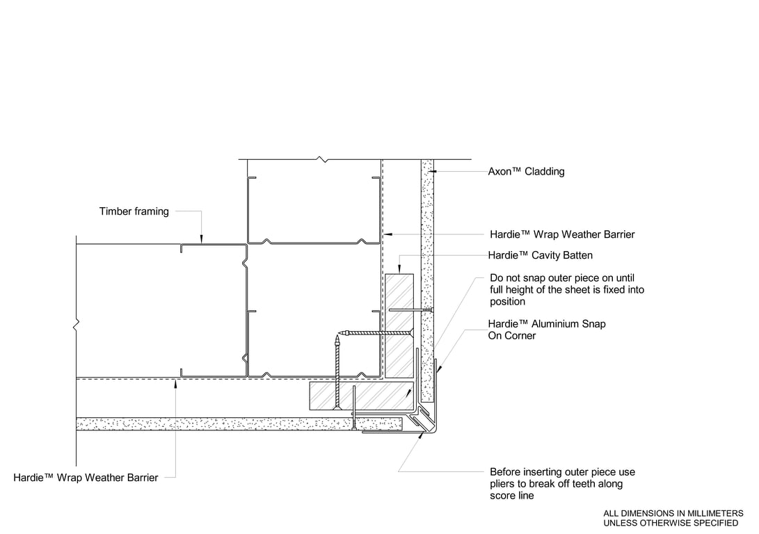
STRIA FT Timber CFFC Vertical Joint Using STRIA Vertical Flashing Stop

 Image of STRIA FT Timber CFFC Vertical Joint Using STRIA Vertical Flashing Stop

Detail Download. 2D Details / Drafting Views accompany the 3D content and allow for detailed technical construction documentation.