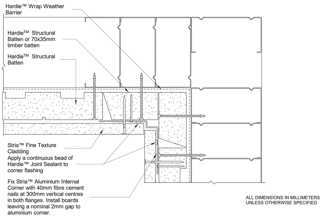
STRIA FT Steel DF Internal Mitre Corner

 Image of STRIA FT Steel DF Internal Mitre Corner

Detail Download. 2D Details / Drafting Views accompany the 3D content and allow for detailed technical construction documentation.