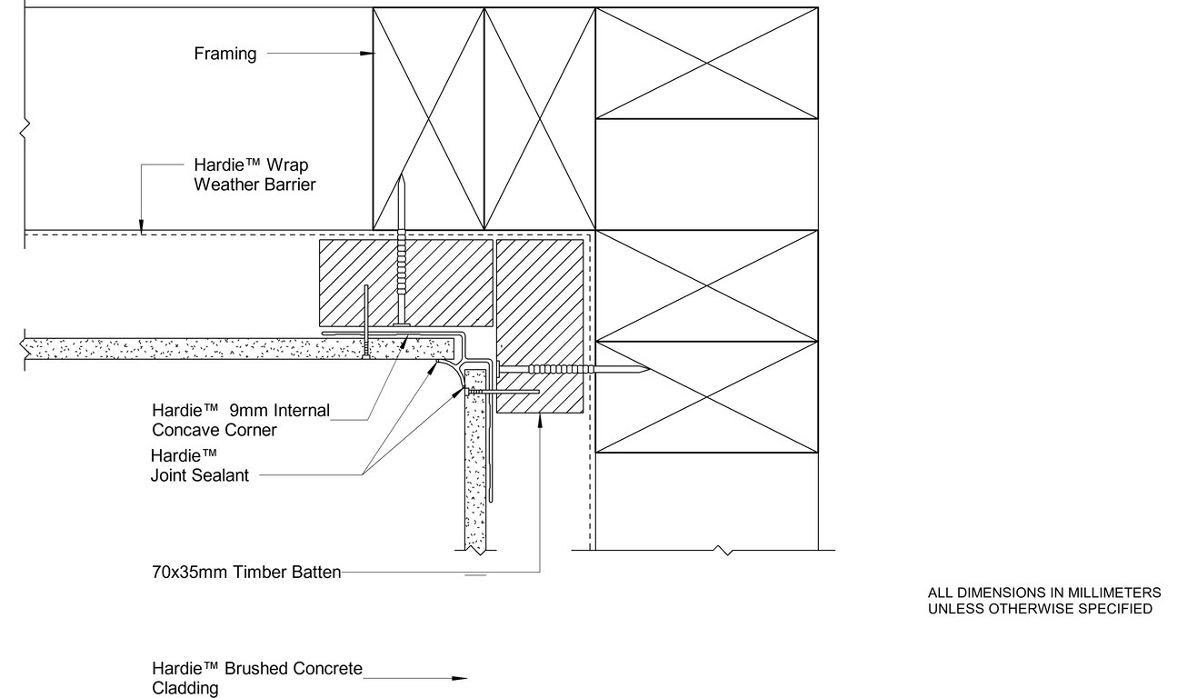
STRIA FT Steel CFTB Vertical Joint Detail

 Image of STRIA FT Steel CFTB Vertical Joint Detail

Detail Download. 2D Details / Drafting Views accompany the 3D content and allow for detailed technical construction documentation.