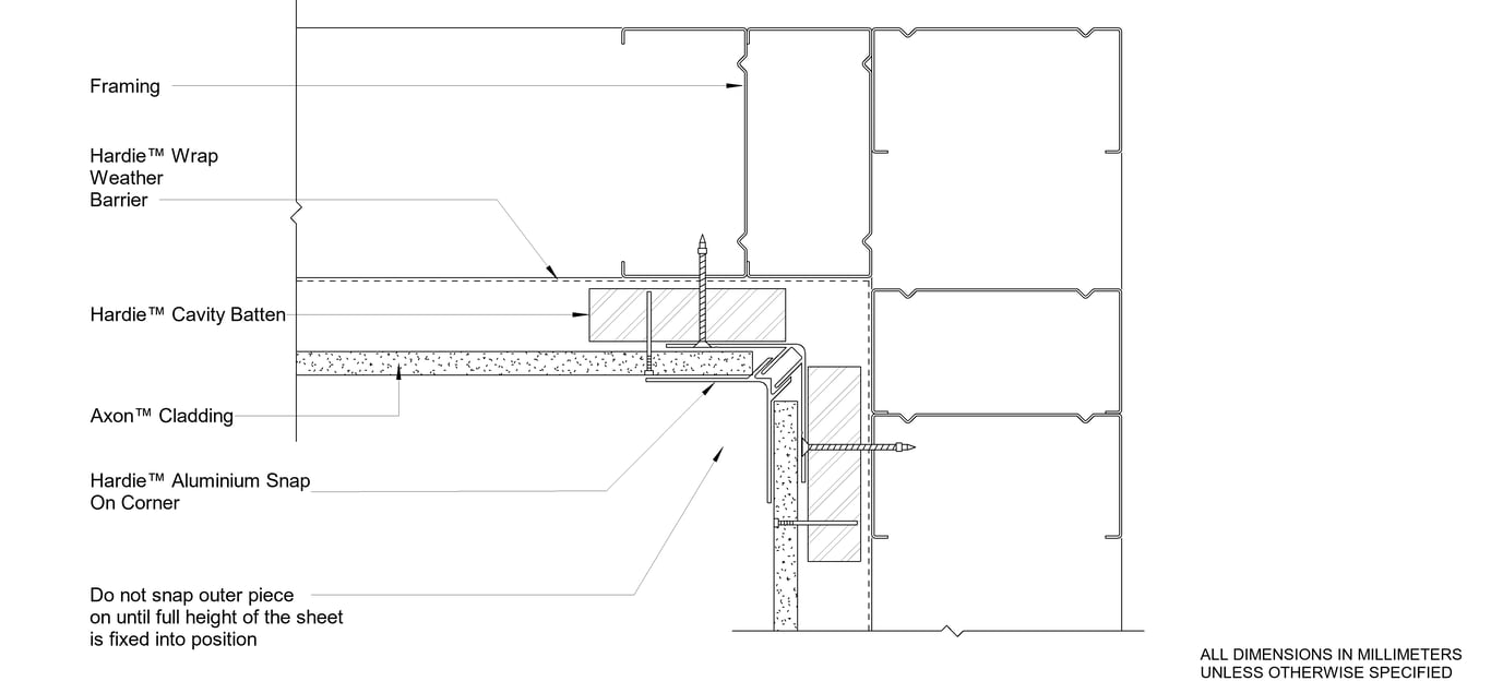
STRIA FT Steel CFTB External Trim Corner

 Image of STRIA FT Steel CFTB External Trim Corner

Detail Download. 2D Details / Drafting Views accompany the 3D content and allow for detailed technical construction documentation.