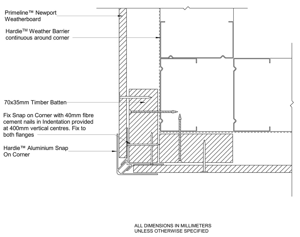
STRIA FT Steel CFFC Window Jamb - Trim With Castellated Batten

 Image of STRIA FT Steel CFFC Window Jamb - Trim With Castellated Batten

Detail Download. 2D Details / Drafting Views accompany the 3D content and allow for detailed technical construction documentation.