STRIA FT Steel CFFC External Corner Between Vertical And Horizontally Oriented Boards

 Image of STRIA FT Steel CFFC External Corner Between Vertical And Horizontally Oriented Boards

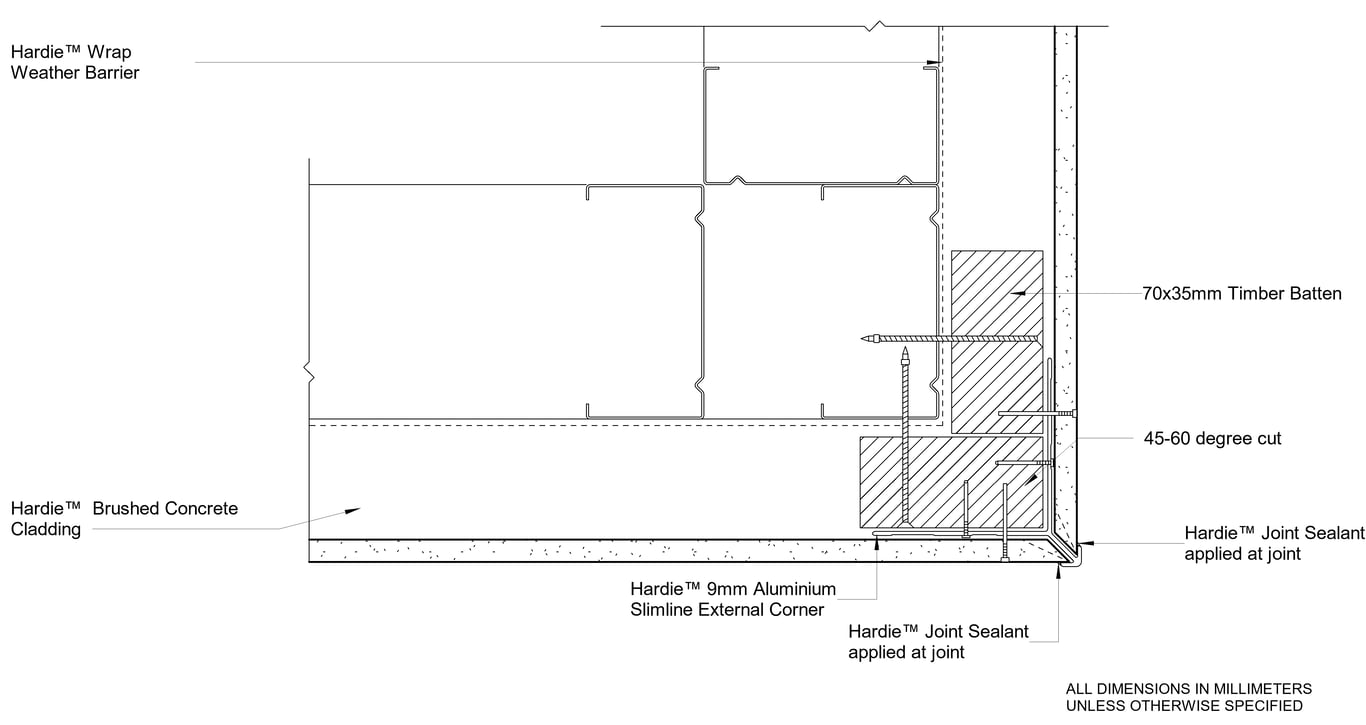
Detail Download. 2D Details / Drafting Views accompany the 3D content and allow for detailed technical construction documentation.

James Hardie Logo

Connect with the Manufacturer

RESEARCH PRODUCT