SL65 - Bi-Parting Cavity Slider - Cavity Track - Cavity Wall

 Image of SL65 - Bi-Parting Cavity Slider - Cavity Track - Cavity Wall

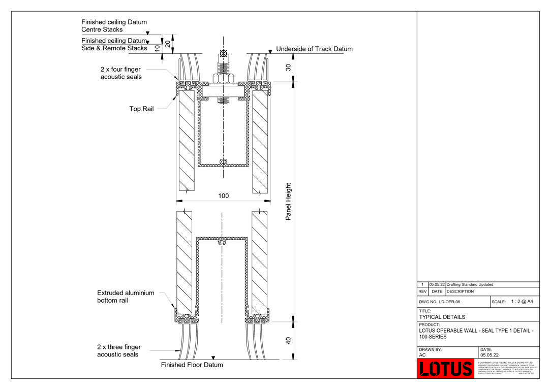
Detail Download. 2D Details / Drafting Views accompany the 3D content and allow for detailed technical construction documentation.