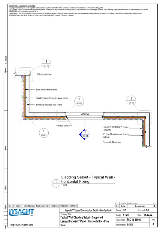
S11-13 - Lysaght Snapseam® Window Assembly - Horizontal Fix

 Image of S11-13 - Lysaght Snapseam® Window Assembly - Horizontal Fix

Detail Download. 2D Details / Drafting Views accompany the 3D content and allow for detailed technical construction documentation.