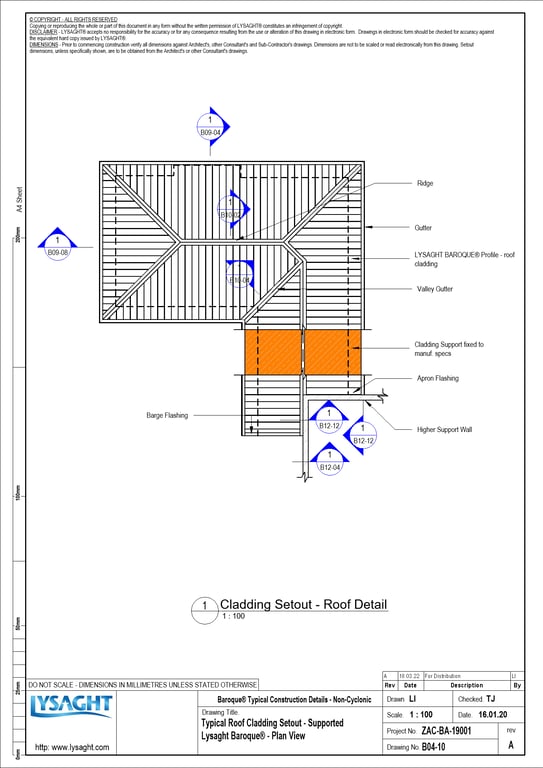
S09-05 - Top of Wall Eave Detail - Overhang - Unsupported Lysaght Snapseam® - Horizontal Fix

 Image of S09-05 - Top of Wall Eave Detail - Overhang - Unsupported Lysaght Snapseam® - Horizontal Fix

Detail Download. 2D Details / Drafting Views accompany the 3D content and allow for detailed technical construction documentation.