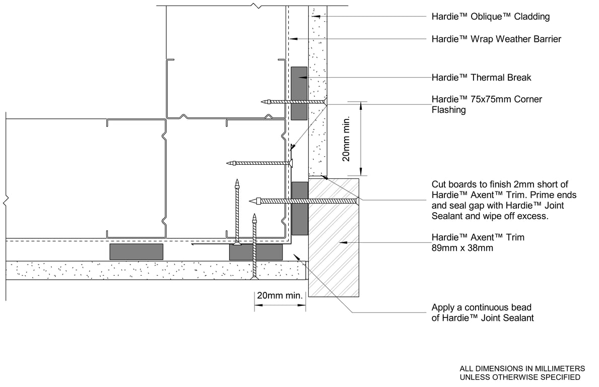
PRLN Timber CFTB External Snap On Corner Option

 Image of PRLN Timber CFTB External Snap On Corner Option

Detail Download. 2D Details / Drafting Views accompany the 3D content and allow for detailed technical construction documentation.

James Hardie Logo

Connect with the Manufacturer

RESEARCH PRODUCT