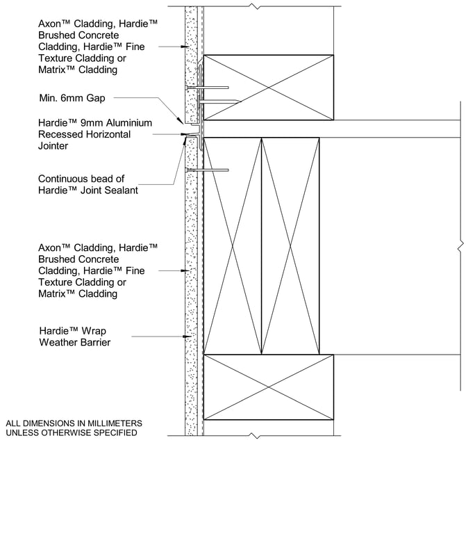
PRLN Steel DF Slab-Eave Junction Detail

 Image of PRLN Steel DF Slab-Eave Junction Detail

Detail Download. 2D Details / Drafting Views accompany the 3D content and allow for detailed technical construction documentation.