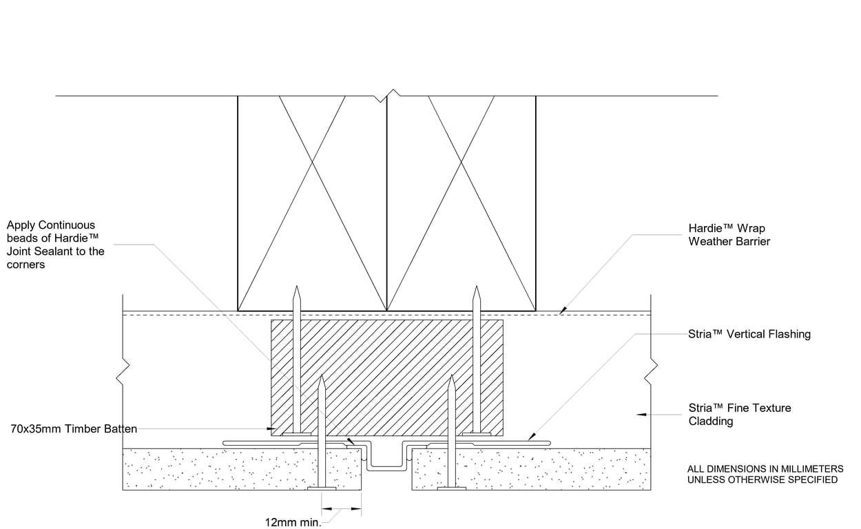
PRLN Steel DF Internal Snap On Corner Option

 Image of PRLN Steel DF Internal Snap On Corner Option

Detail Download. 2D Details / Drafting Views accompany the 3D content and allow for detailed technical construction documentation.