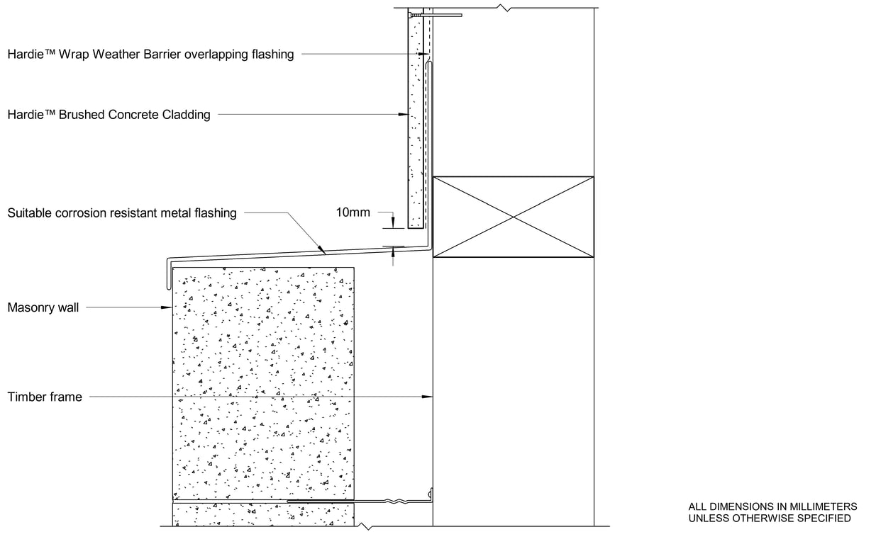
PRLN Steel CFTB Slab Junction Alternative

 Image of PRLN Steel CFTB Slab Junction Alternative

Detail Download. 2D Details / Drafting Views accompany the 3D content and allow for detailed technical construction documentation.