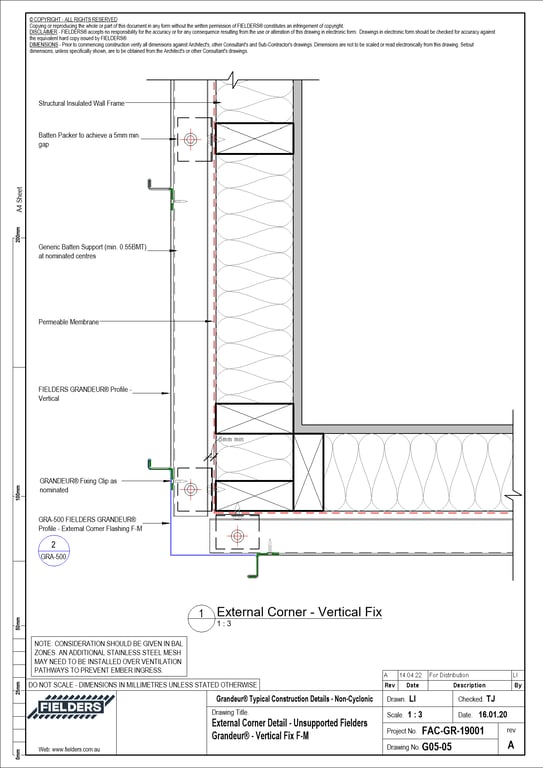
P07-02 - Wall Closure Detail - Supported Fielders Prominence™ Panel - Horizontal Fix

 Image of P07-02 - Wall Closure Detail - Supported Fielders Prominence™ Panel - Horizontal Fix

Detail Download. 2D Details / Drafting Views accompany the 3D content and allow for detailed technical construction documentation.