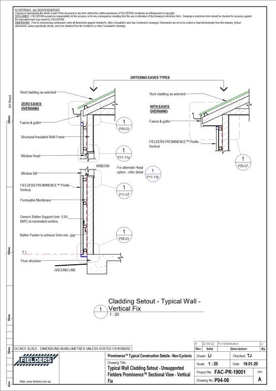
P04-06 - Typical Wall Cladding Setout - Unsupported Fielders Prominence™ Sectional View - Vertical Fix

 Image of P04-06 - Typical Wall Cladding Setout - Unsupported Fielders Prominence™ Sectional View - Vertical Fix

Detail Download. 2D Details / Drafting Views accompany the 3D content and allow for detailed technical construction documentation.