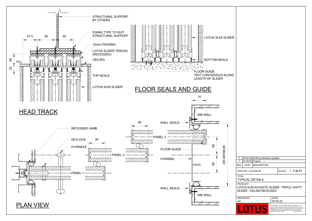
OPR - Typical Detail - Standard & Fineline Panel Pass Door Joint

 Image of OPR - Typical Detail - Standard & Fineline Panel Pass Door Joint

Detail Download. 2D Details / Drafting Views accompany the 3D content and allow for detailed technical construction documentation.