OBLIQUE Timber CFTB Off-Stud Jointing Of Battens - Option 1

 Image of OBLIQUE Timber CFTB Off-Stud Jointing Of Battens - Option 1

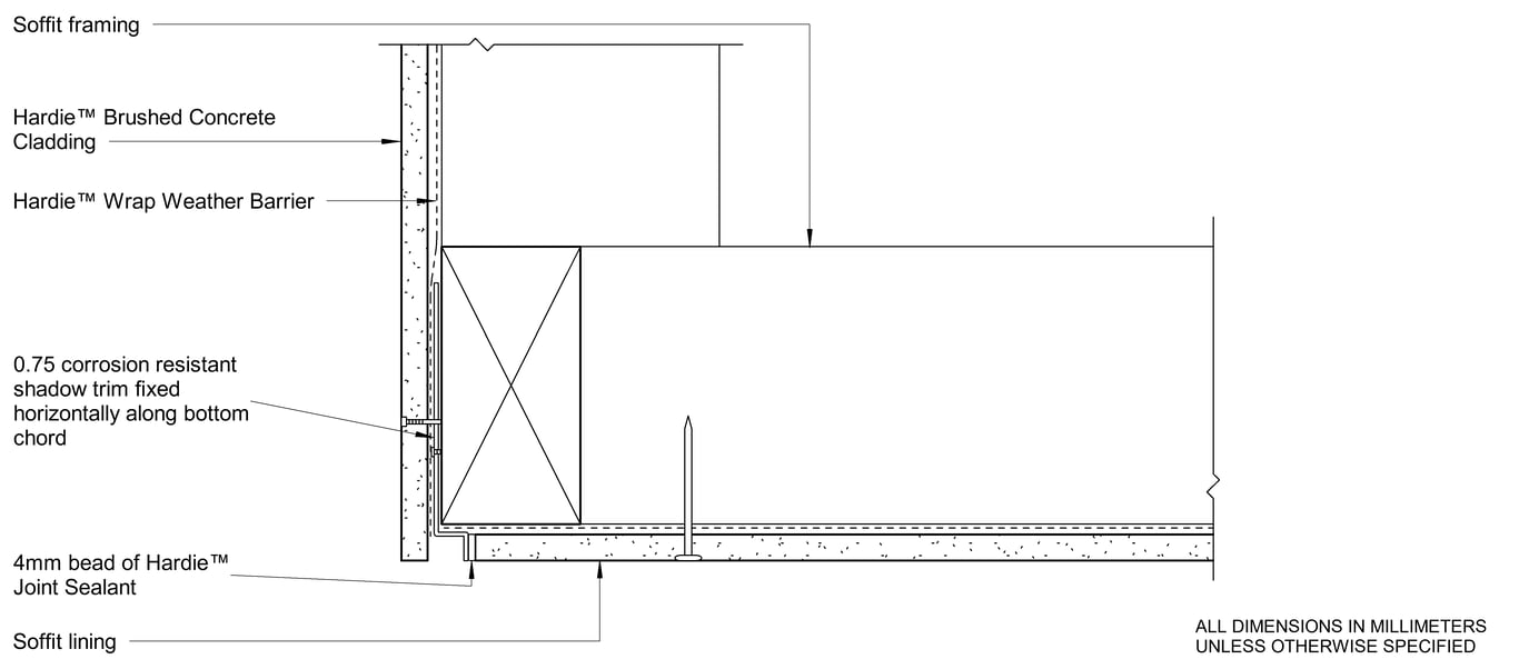
Detail Download. 2D Details / Drafting Views accompany the 3D content and allow for detailed technical construction documentation.

James Hardie Logo

Connect with the Manufacturer

RESEARCH PRODUCT