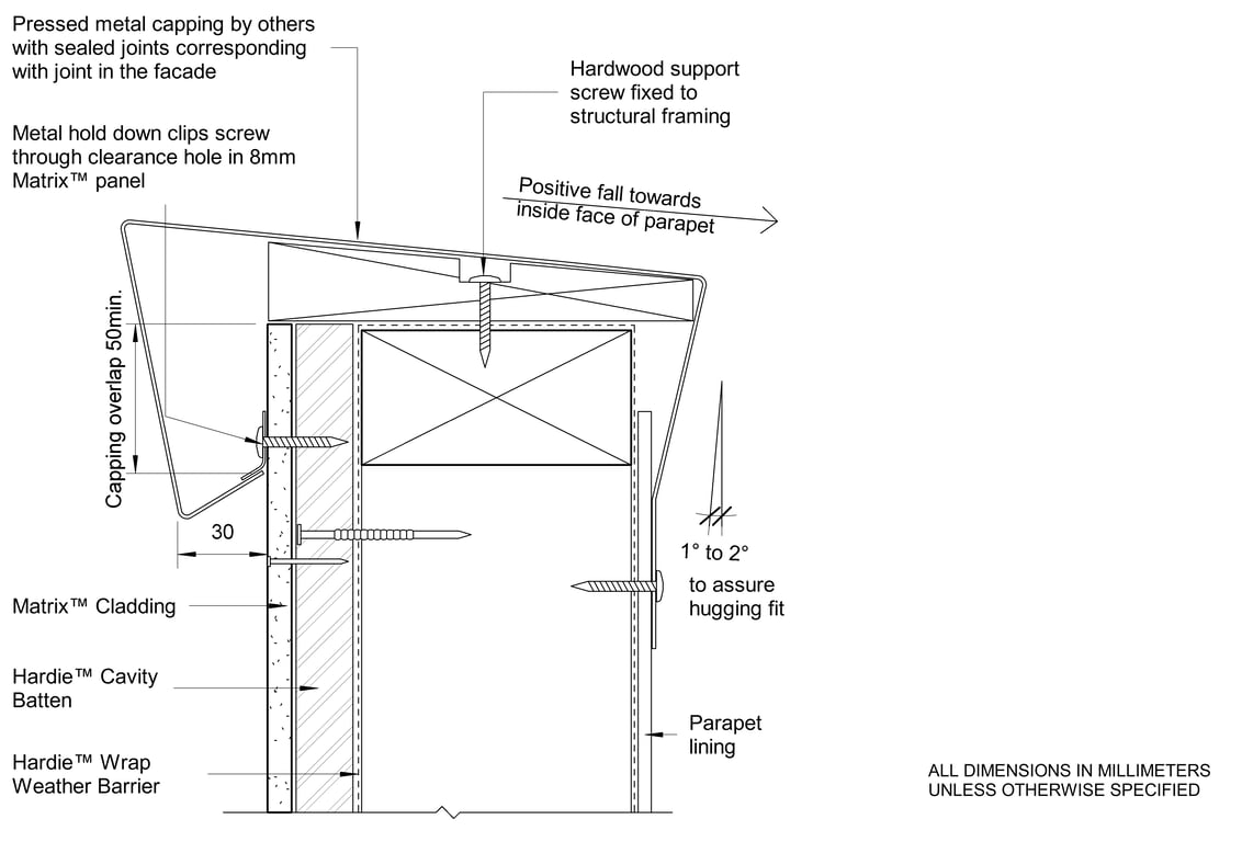
OBLIQUE Steel CFFC Window Head And Sill - Trim

 Image of OBLIQUE Steel CFFC Window Head And Sill - Trim

Detail Download. 2D Details / Drafting Views accompany the 3D content and allow for detailed technical construction documentation.