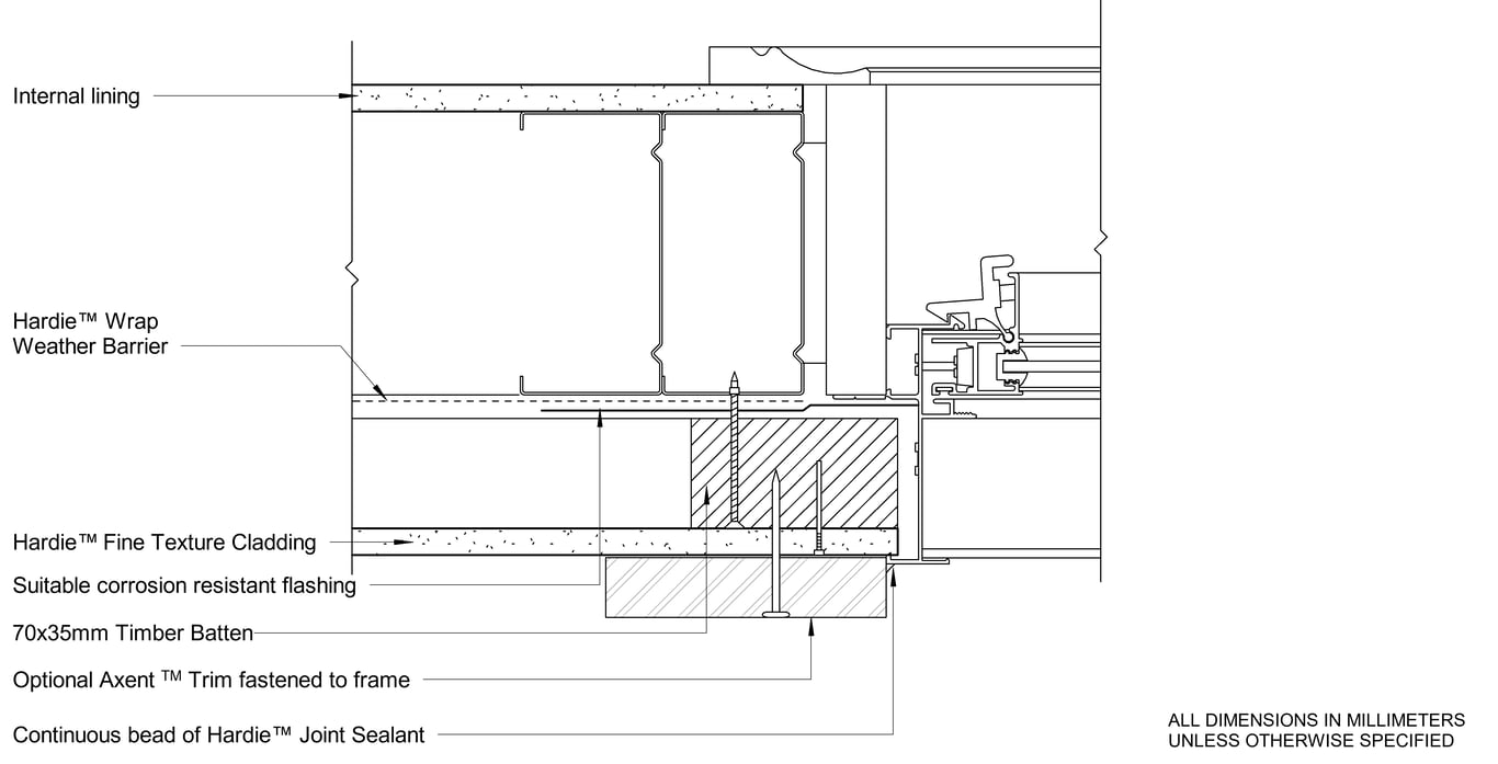
OBLIQUE Steel CFFC Off-Stud Jointing Of Battens - Option 2

 Image of OBLIQUE Steel CFFC Off-Stud Jointing Of Battens - Option 2

Detail Download. 2D Details / Drafting Views accompany the 3D content and allow for detailed technical construction documentation.