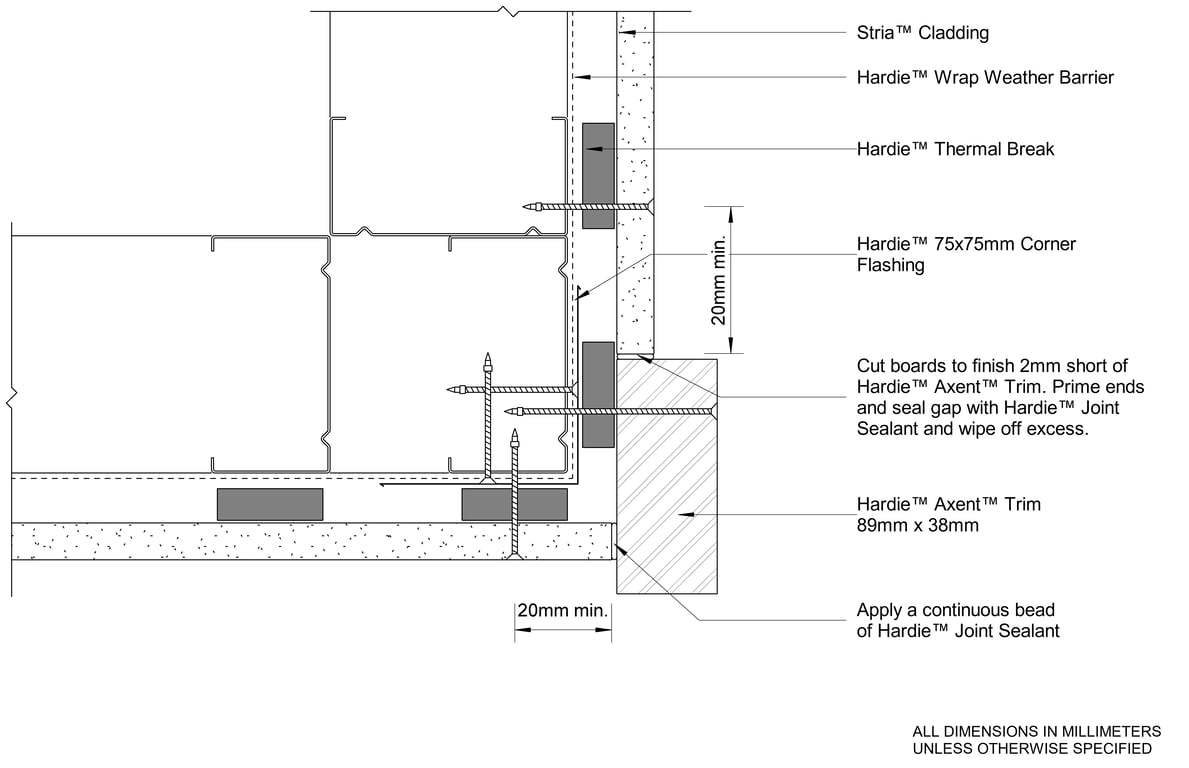
OBLIQUE Steel CFFC Facade-Soffit Junction - Cavity Fix

 Image of OBLIQUE Steel CFFC Facade-Soffit Junction - Cavity Fix

Detail Download. 2D Details / Drafting Views accompany the 3D content and allow for detailed technical construction documentation.