
Metal SheetCladding Lysaght Zenith Imperial325 DoverWhite
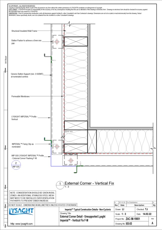
LYSAGHT IMPERIAL™ architectural cladding is a concealed fixed flat panel cladding system. LYSAGHT IMPERIAL™ is structurally sound for direct fixed to steel battens and can also be fixed onto conventional supporting substrate such as plywood or fibre cement panels. The wide flat profile gives a modern architecturally designed premium finish. LYSAGHT IMPERIAL™ cladding has a curving capacity, not easily achieved with all cladding profiles. LYSAGHT IMPERIAL™ cladding can be pre-curved to a radius of 3m.Key Information:Application: Roofing and wallingBase Metal Thickness: 0.55/0.75mmEffective Cover Width: 325mmRib Height: 27mmMinimum Pitch: 1 degree (1:50) for BMT 0.75mm / 3 degrees (1:20) for BMT 0.55mm
Manufacturer
Material
Model
Type Comments
Lysaght_Zenith_Imperial325
CreatedBy













