
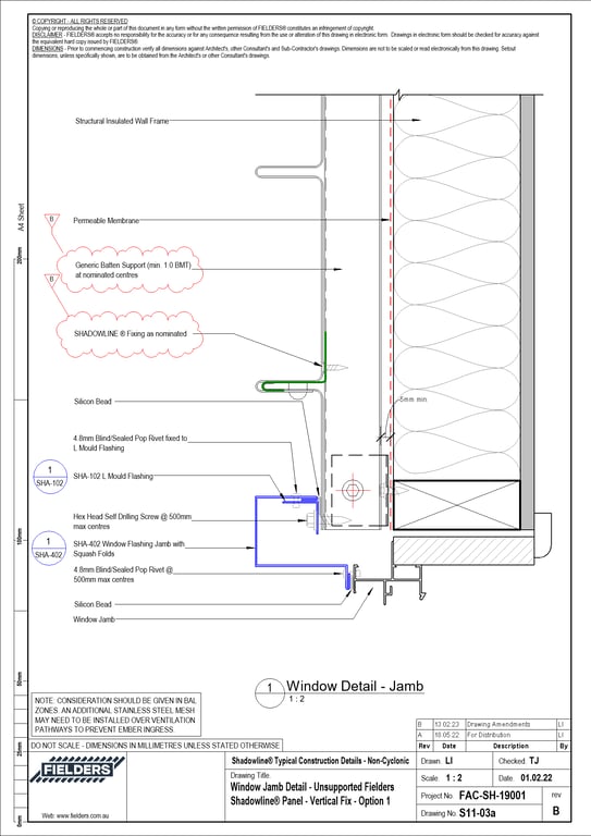
Metal SheetCladding Fielders CorroMax21 Gully
Enhance the look of a traditional corrugated steel roof with CorroMax 21® or CorroMax 35®. Offering the benefits of strength, aesthetic appeal and a tougher roof, it’s easy to see why Fielders’ CorroMax® is the ideal roofing product for home owners, renovators, designers and builders alike.
CreatedBy
Manufacturer
Model
Fielders - CorroMax21 - Gully™
Type Comments
Fielders_CorroMax21











