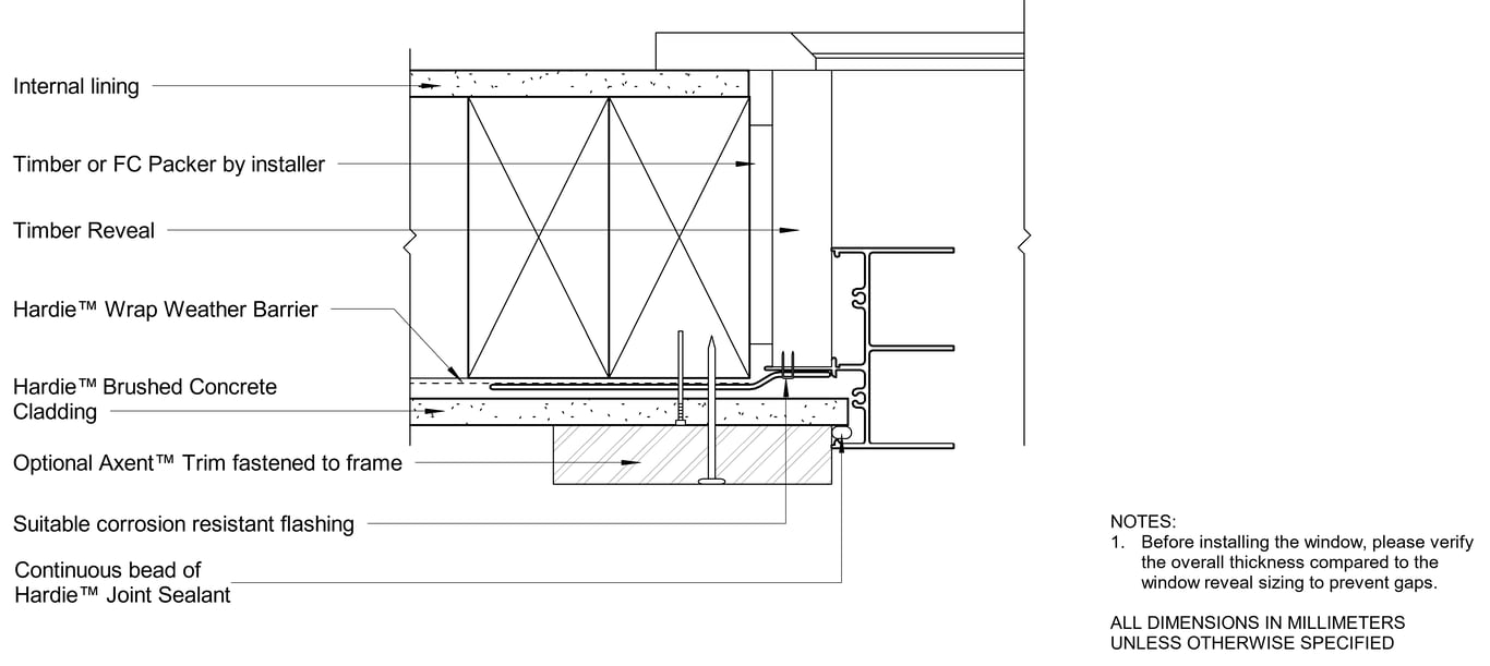
MATRIX Timber Countersunk Screw Option 3

 Image of MATRIX Timber Countersunk Screw Option 3

Detail Download. 2D Details / Drafting Views accompany the 3D content and allow for detailed technical construction documentation.