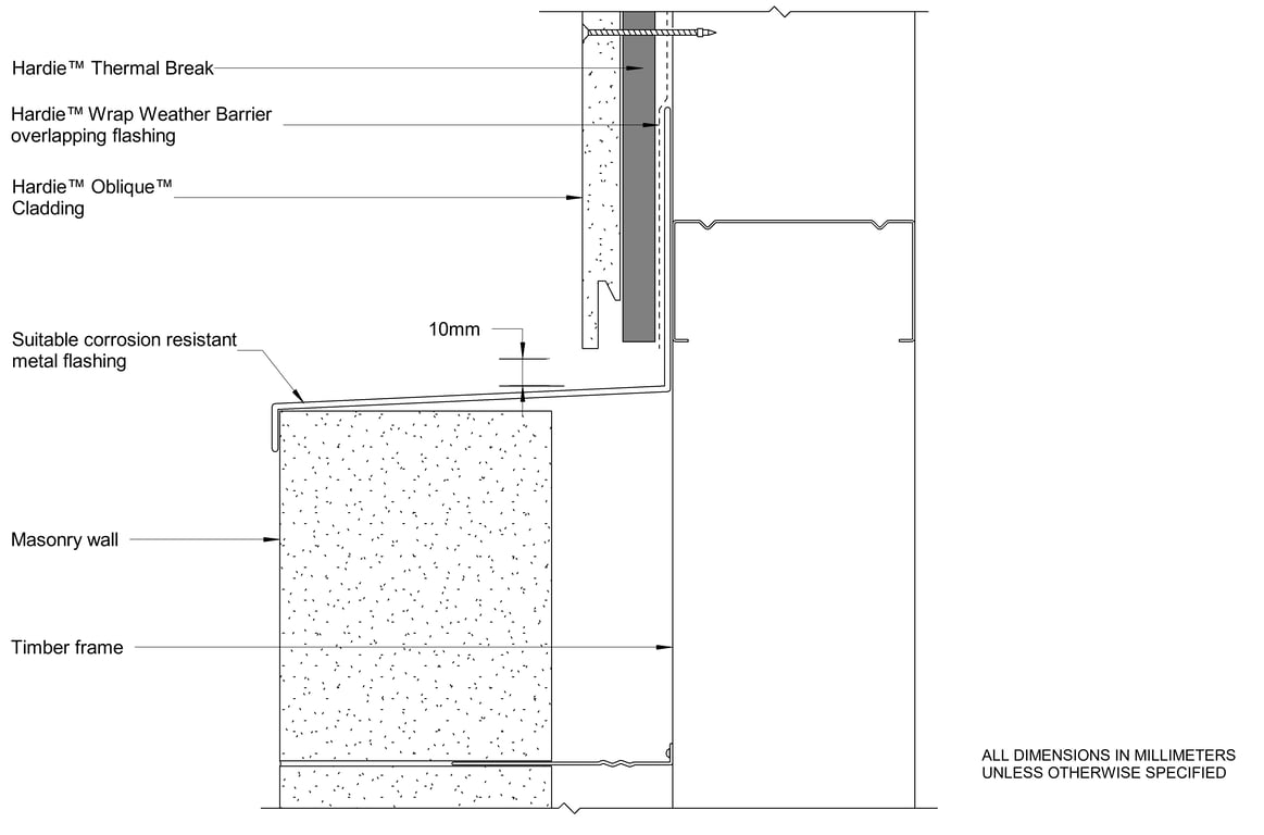
MATRIX Steel Angled Corner

 Image of MATRIX Steel Angled Corner

Detail Download. 2D Details / Drafting Views accompany the 3D content and allow for detailed technical construction documentation.