Lysaght - Zenith - Longline
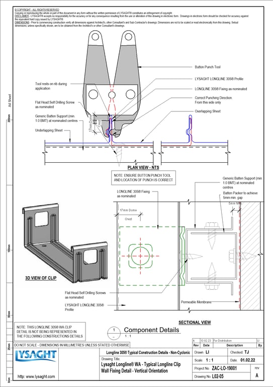
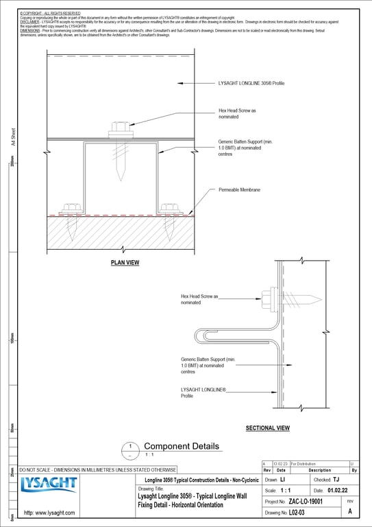
LYSAGHT LONGLINE 305® cladding is a concealed fixed roof cladding with bold ribs and wide pans. It is ideal for medium to large commercial projects where special architectural effects are desired. It has also been popular in industrial and residential applications. The unique locking system fixes the cladding to the clip so no fasteners pass through the roofing. Concealed fixing means there are no penetrations so weathertightness is maximised and a high rainfall capacity is achieved. LONGLINE 305® cladding can also be fluted or tapered allowing fanned and rounded plan roof shapes to be clad with ribs radiating from a central point.Key Information:Application: Roofing and wallingBase Metal Thickness: 0.70mmEffective Cover Width: 305mmRib Height: 48mmMinimum Pitch: 1 degree (1:50)
Collection Download. A collection is a zip file containing a range of objects or images. The ‘Complete Library’ collection contains the entire library.
Products in this collection
Category
Tags
12 of 112 products























