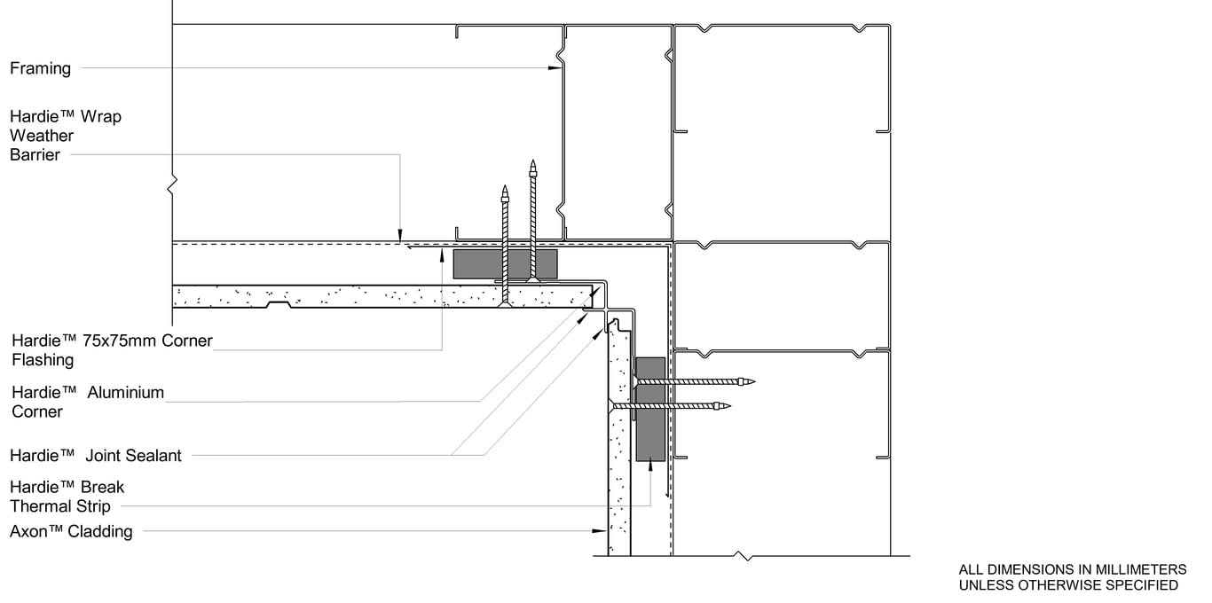
LINEA Steel DF Slab Eave Junction

 Image of LINEA Steel DF Slab Eave Junction

Detail Download. 2D Details / Drafting Views accompany the 3D content and allow for detailed technical construction documentation.