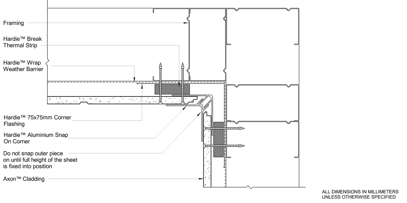
LINEA Steel CFTB Trim External Corner

 Image of LINEA Steel CFTB Trim External Corner

Detail Download. 2D Details / Drafting Views accompany the 3D content and allow for detailed technical construction documentation.