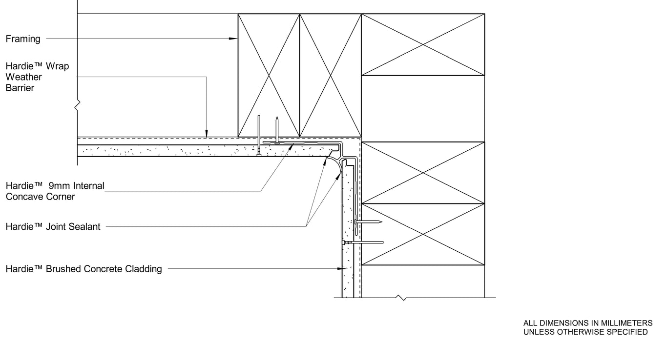
LINEA Steel CFFC Window Jamb

 Image of LINEA Steel CFFC Window Jamb

Detail Download. 2D Details / Drafting Views accompany the 3D content and allow for detailed technical construction documentation.