JamesHardie VirtualShowroom

 Image of JamesHardie VirtualShowroom

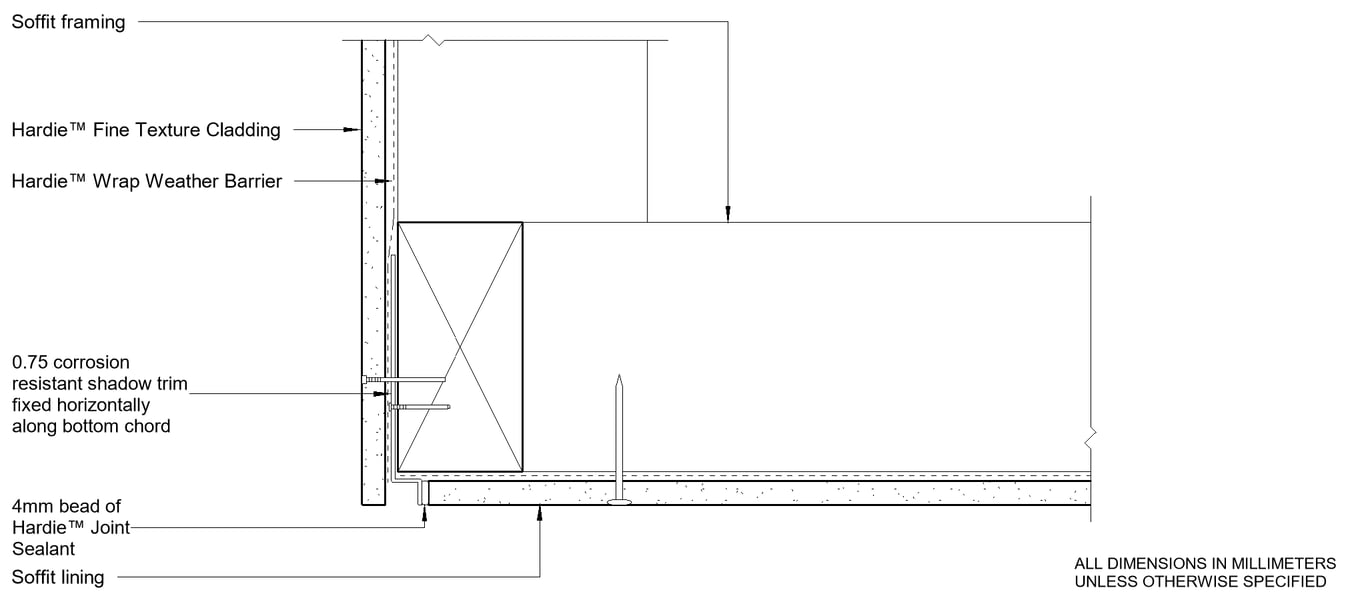
Virtual Showroom Download. A Revit project file (.RVT) with families / types laid out for efficient browsing and views for QA of content 2D / 3D appearance and family data.