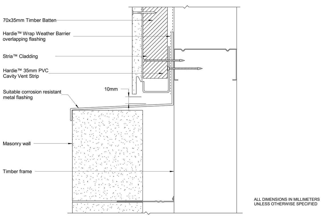
HFTC Timber DF Sealant Fill Corner Option Less Than 90º Internal Cnr

 Image of HFTC Timber DF Sealant Fill Corner Option Less Than 90º Internal Cnr

Detail Download. 2D Details / Drafting Views accompany the 3D content and allow for detailed technical construction documentation.

James Hardie Logo

Connect with the Manufacturer

RESEARCH PRODUCT