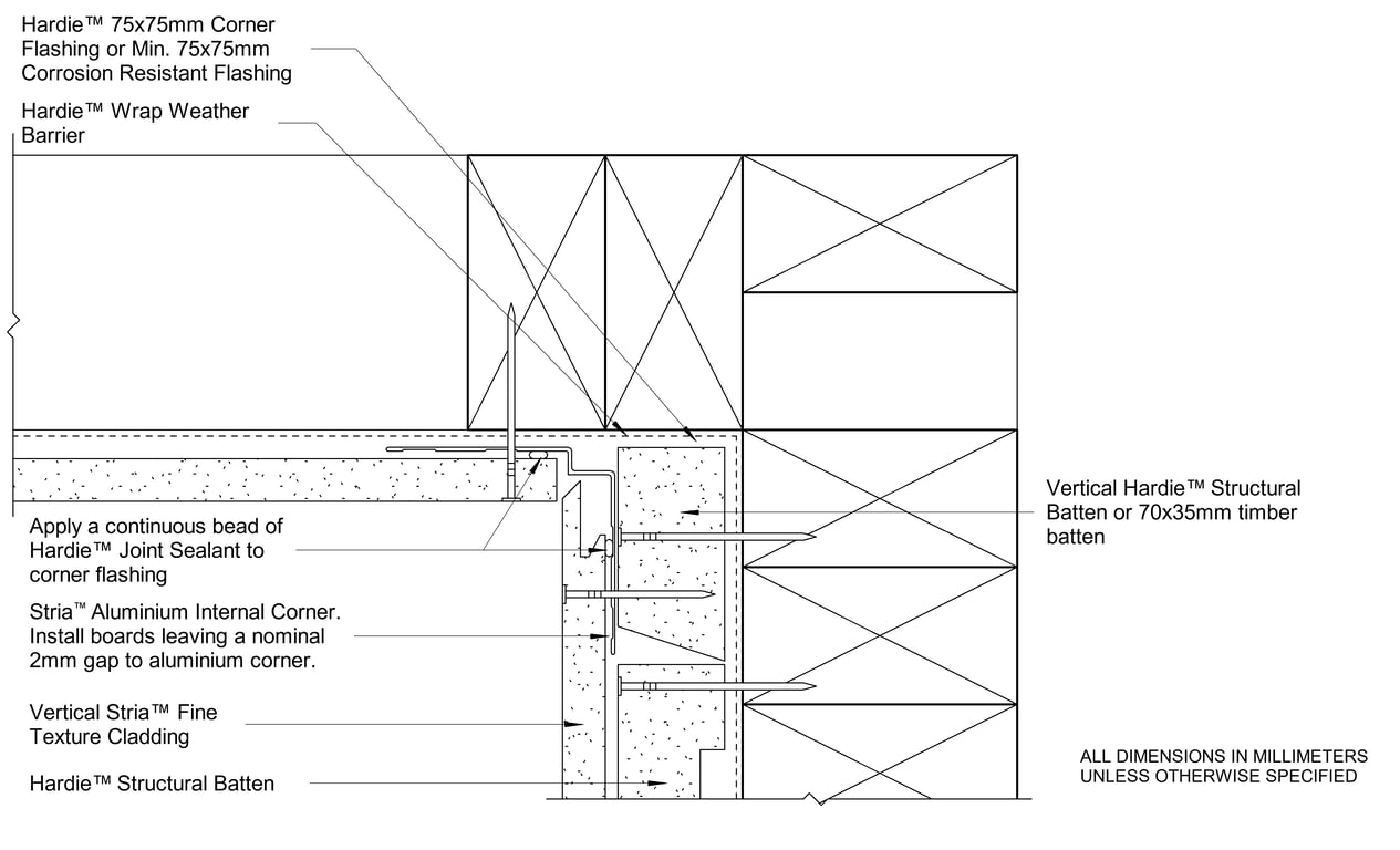
HFTC Timber CFFC Aluminium Internal Cnr Concave

 Image of HFTC Timber CFFC Aluminium Internal Cnr Concave

Detail Download. 2D Details / Drafting Views accompany the 3D content and allow for detailed technical construction documentation.