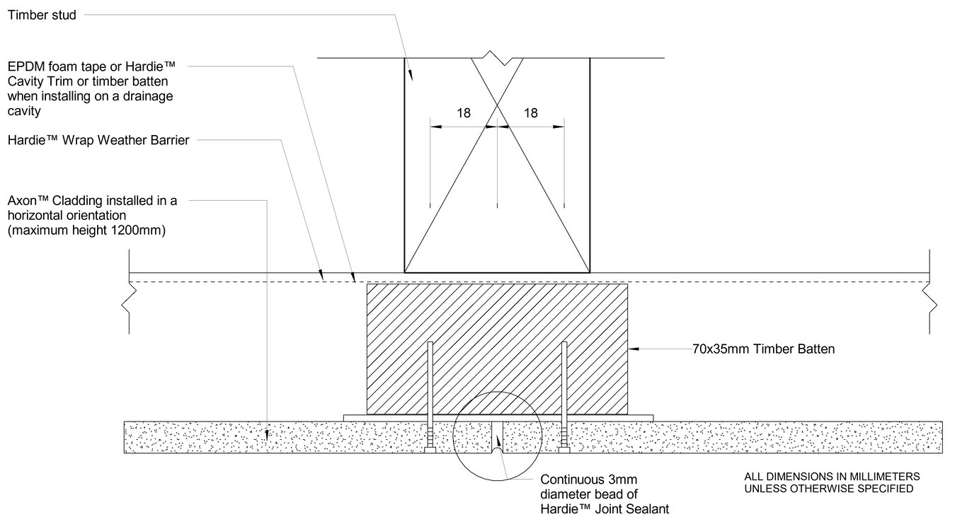
HBC Timber DF Sealant Fill Internal Corner Option

 Image of HBC Timber DF Sealant Fill Internal Corner Option

Detail Download. 2D Details / Drafting Views accompany the 3D content and allow for detailed technical construction documentation.