HBC Steel DF Blade Wall

 Image of HBC Steel DF Blade Wall

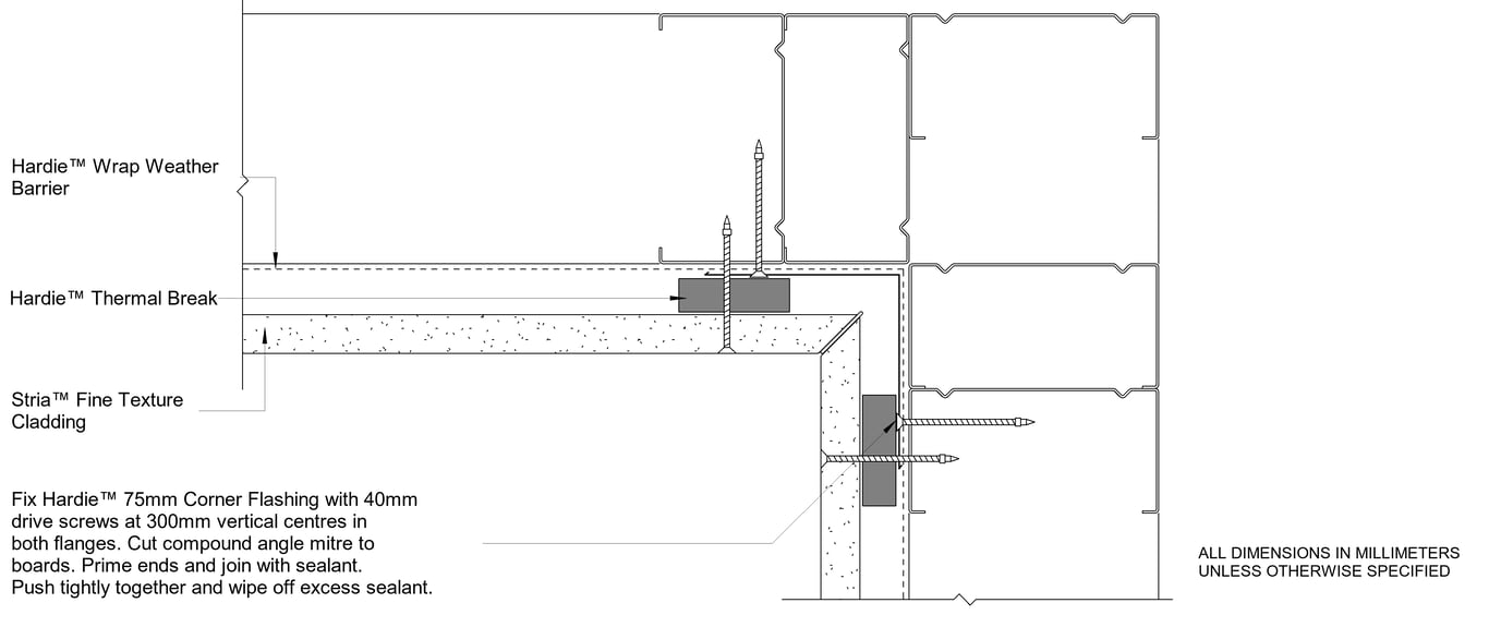
Detail Download. 2D Details / Drafting Views accompany the 3D content and allow for detailed technical construction documentation.

James Hardie Logo

Connect with the Manufacturer

RESEARCH PRODUCT