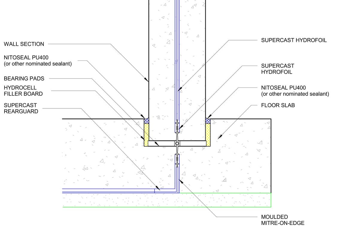
FLOOR WALL RECESS DETAIL

 Image of FLOOR WALL RECESS DETAIL

Detail Download. 2D Details / Drafting Views accompany the 3D content and allow for detailed technical construction documentation.