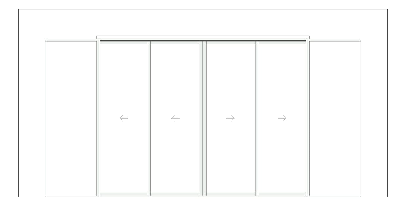
Image of Door Sliding Capral AGS 900 Cavity 4P BiParting

Door Sliding Capral AGS 900 Cavity 4P BiParting

AGS 900 is a true commercial sliding door designed for high-traffic areas delivering bold panel sizes and exceptional performance.

Basic & Advanced Content
Created By IGS BIM Solutions
Clearance / Required Space Zones
Manufacturer
Model
AGS_900_CXX-XXC
ModifiedIssue
20250420.00
Types