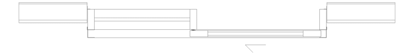
Image of Door Sliding Capral AGS 225 1P

Door Sliding Capral AGS 225 1P

The AGS 225 Sliding Door is a 46mm pocket glazed commercial door panel capable of delivering flexibility, performance and ease of assembly in mind.

Basic & Advanced Content
Created By IGS BIM Solutions
Clearance / Required Space Zones
Manufacturer
Model
AGS_225_Sliding_X_1022
ModifiedIssue
20250217.00
Types