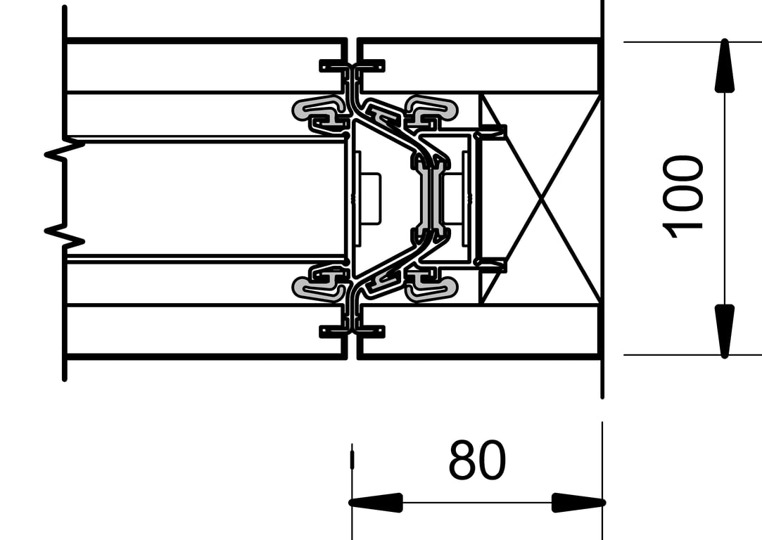
DH-MOV-03 - MOVEO GLASS - SINGLE INSET GLASS PASS THROUGH DOOR

 Image of DH-MOV-03 - MOVEO GLASS - SINGLE INSET GLASS PASS THROUGH DOOR

Detail Download. 2D Details / Drafting Views accompany the 3D content and allow for detailed technical construction documentation.