D12-07 - Wall to Typical Roof Transition Detail - Unsupported Lysaght Dominion® Panel - Vertical Fix - Side View

 Image of D12-07 - Wall to Typical Roof Transition Detail - Unsupported Lysaght Dominion® Panel - Vertical Fix - Side View

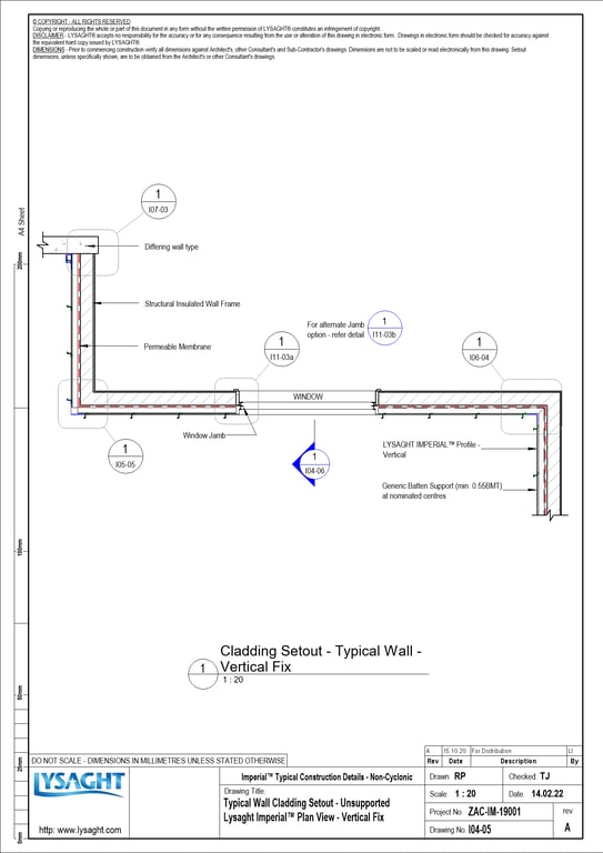
Detail Download. 2D Details / Drafting Views accompany the 3D content and allow for detailed technical construction documentation.

Lysaght Logo

Connect with the Manufacturer

RESEARCH PRODUCT