
Cladding Smooth JamesHardie MatrixCladding VerticalStaggered 590x2390Sheet Domino
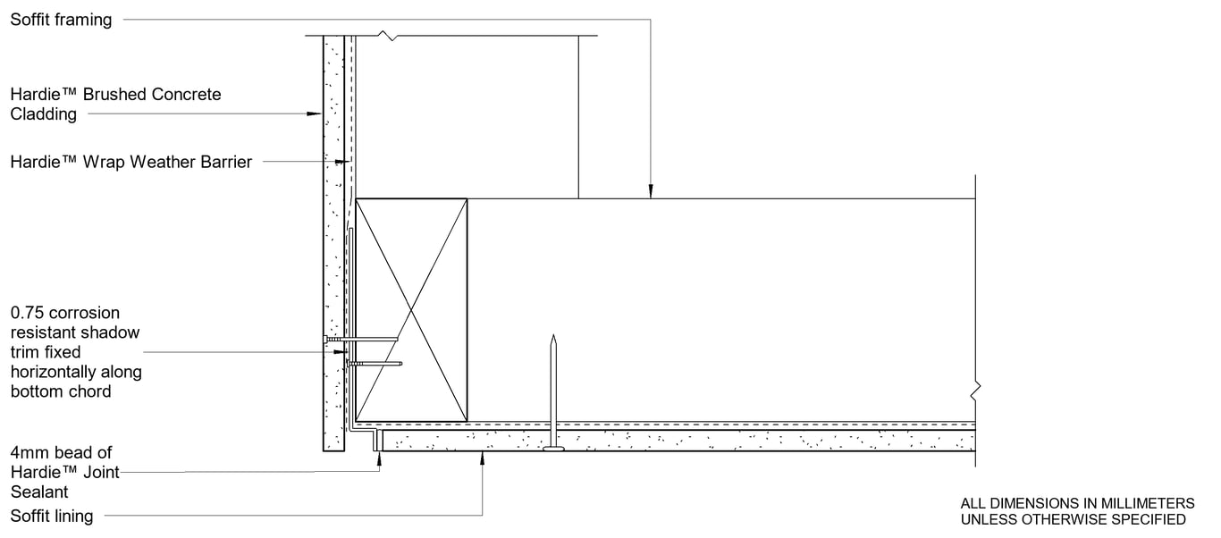
Matrix™ is an exterior cladding system with a clean, modern, expressed-joint look. Matrix offers a bold industrial aesthetic when an architectural panelised look is desired. Choose from various panel sizes that suit different stud spacings, and let the 10mm express joint create a variety of geometric shapes in square, vertical, horizontal and brick pattern layouts. Use Matrix for interior feature walls and paint the express joint a dark colour to accentuate the lines and shapes. The cavity construction design improves thermal properties and achieves higher R-values. Finish:Dulux Domino - LRV:7











