
Cladding Board JamesHardie HardieObliqueCladding Vertical 300 Domino
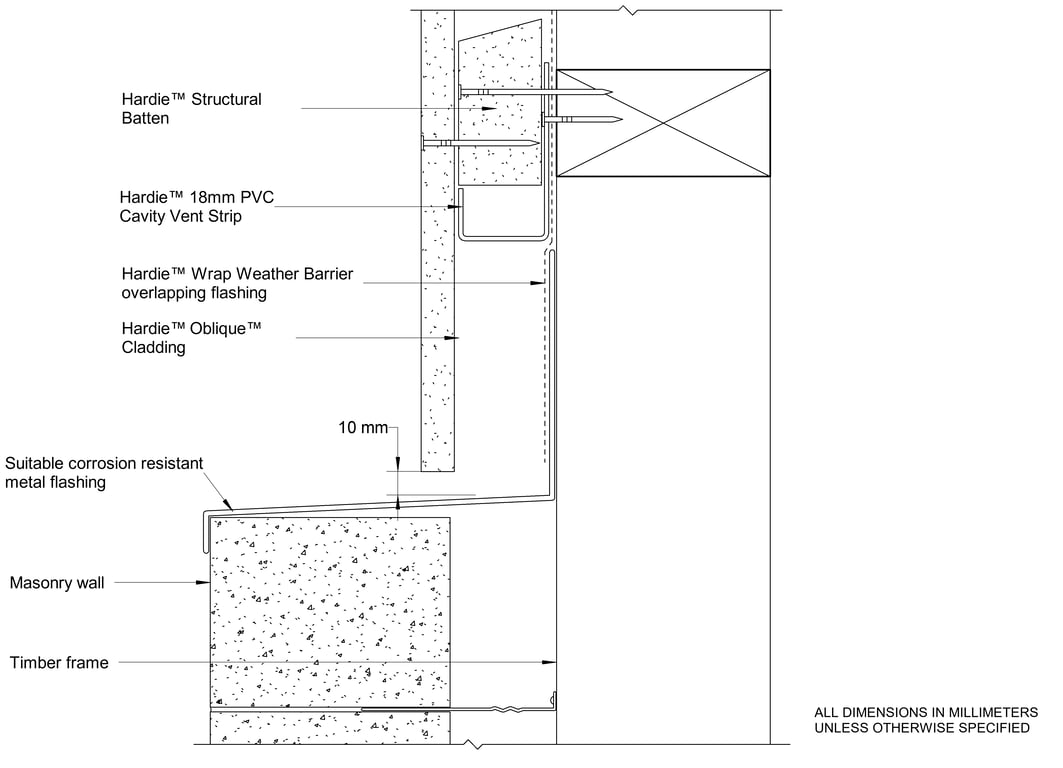
Evoke a bold, contemporary aesthetic with the wide grooves and bespoke design flexibility of Hardie™ Oblique™ Cladding. Square and angled edges cast shadows that bring rhythm and depth to walls. Defined by its bold proportions, this cladding enables the creation of standout, one-of-a-kind facades. The only Hardie™ exterior cladding with a slanted groove edge, delivering highlights and shadows that shift throughout the day.Available in 200mm and 300mm widths, these 14mm thick shiplap boards offer multiple installation options and allow for simple alternation or unique combinations. The horizontal Hardie™ Castellated Battens simplify vertical installation, allowing ventilation and drainage through the cavity. The 2750mm boards suit common wall heights to help to reduce waste, while the 4200mm lengths give tall walls a continuous look, reducing the need for horizontal joints. The boards are pre-primed and ready to paint.Made with Hardie™ premium fibre cement it will stay looking good. It’s resistant to damage from termites, rot and moisture, and engineered to stand up to coastal and other harsh conditions.Finish:Dulux Domino - LRV:55













